新校舍新增的設備及構思
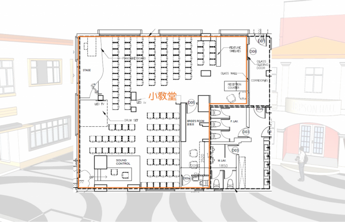
1. 小教堂
教堂在神學院有著重要的位置,除了日常進行早會及崇拜外,更讓師生藉著教堂環境,有一個空間去靜思、禱告、與神建立關係。再者,我們估計未來有部分教會因著不同原因不能再使用現有的聚會地方,或不容易租賃到商業樓宇作聚會之用,但願這個小教堂能祝福他們。
2. 圖書館
原有校舍的圖書館的藏書量,因空間問題已多年封頂,因此會將原有校舍地下的圖書館面積擴充,使圖書館的藏書量近乎倍增。
3. 學生溫習室
我們會於將原有校舍分散的學生溫習室合併搬到15號,並增設小組討論室、祈禱房、輔導室及小組輔導房等。
4. 老師辦公室
原有校舍近正門的多間老師辦公室亦會搬到15號,將老師與學生的距離拉得更近。
5. 宿舍
雖然香港土地非常珍貴,但畢竟群體生活仍是神學訓練的重要一環,而同學入住宿舍的確能幫助他們更直接融入神學院的生活,以及學習在群體中彼此相處。因此,我們盡量在有限的可用空間內設置少量單身和已婚宿舍,除了供本院學生住宿之外,也可提供給回港述職的宣教士作短暫住宿之用。
6. 影音室
除了疫情的影響,教會聚會和神學院課堂需要在網上進行,相信教會在未來會因缺乏聚會的地方,而需要改變聚會方式,例如:家庭小組崇拜、網上崇拜等,我們期望打造一個類似講台背景的影音室,可以進行錄影或現場直播,協助教會做到網上崇拜的功能。另外,由於大量信徒移民,我們也考慮到他們在神學和聖經知識方面的訓練需要,又或我們的課堂不能自由地在現場進行,故此我們要將教學內容錄影,透過不同方式繼續推行神學教育,回應時代的挑戰。
7. 前園廣場及後花園
兩單位相連的牆,和附近的幾個房間將會被拆走,原本位置將會成為一個小廣場,連同隔鄰單位在後方舍前的小花園,可為同學提供安靜默想和反思的空間。
8. 外借使用
當然,在學期以外的日子,部分設施也可以提供給教會的信徒作個人或小組退修之用。在紛亂的時代裡,願這地方成為城市中讓心靈安靜和親近上主的空間。





